Популярность каркасного строительства растет с каждым днем. Однако непонятно, как выбрать подходящие для возведения проекты каркасных домов с мансардой? Какие плюсы имеет такое решение?
В 20 веке отдавали преимущество постройками из кирпича, в наше же время произошел своеобразный возврат к «истокам» в виде использования дерева для возведения домов. Конечно же, «классика» русского зодчества – это бревно или брус. Однако строить жилые дома можно не только в виде сруба. Все большую популярность приобретают дома, построенные по каркасной технологии. И пускай она предусматривает не только использование дерева, но оно играет немаловажное значение. Помимо экологичности, каркасные дома еще могут похвастаться скоростью возведения, низкой ценой, показателями теплопроводности, возможностью ведения строительства без привлечения специальной техники.


Опираясь на опыт США и Европы в строительстве каркасных домов, технология нашла свой отклик в сердцах наших сограждан, сумевших преодолеть все предубеждения насчет нее. Имея порой ограниченный бюджет, немаловажно определиться с размерами будущего дома.
Маленький дом не будет давать требуемый уровень комфорта для всей семьи, а большой может стать обременением, требующим вливания больших денежных средств на строительство и обслуживание. Оптимальным вариантом может стать дом с наличием мансарды, позволяющей увеличить площадь дома почти в два раза, при том не сильно повлиять на бюджет строительства.
Рассмотрим наиболее удачные примеры проектов каркасных домов с мансардой.
Варианты для дачи
Использование каркасной технологии довольно популярно при возведении дач. Это может быть обусловлено тем, что изначально дачи и возводились с применением данной технологии и тем, что люди не хотят строить «полноценный» загородный дом с ее помощью.


Компактный каркасный дом с мансардой, имеющий небольшой слой теплоизоляции – прекрасный выбор для любителей отдыха за городом, особенно если в вашем распоряжении небольшой земельный участок.
Дом 4*4
Мансардный этаж можно обустроить двумя способами: либо построить кровлю с высоким коньком, либо сделать «ломанную» крышу. Более простым вариантом реализации проекта является обустройство ломанный кровли и создание по комнате на каждом этаже. Для постройки подобного дома требуется минимум времени и денежных средств.


Проект 4*5
Для подобного дома можно реализовать мансарду с высоким коньком. Однако площадь дома будет ниже, чем постройки с ломанной кровлей. Однако оба варианта часто применяются в каркасном строительстве. Подобный дом вполне можно использовать для проживания в течении всего года и даже обустроить санузел на первом этаже.


Для отделки фасада можно использовать блок-хаус, имитацию бруса, сайдинг.
Дом 5*6 с верандой
Нередко каркасный дом с мансардой имеет пристройку в виде беседки открытого типа либо закрытой веранды. Использование того или иного утеплительного материала предполагает его использование только в сезон или круглогодично. Для подобных домов важно продумать расположение лестницы, так как если ее расположить неудачно, она будет скрадывать значительную часть пространства.


Дома для постоянного проживания: популярные проекты
А теперь рассмотрим наиболее популярные размеры каркасных домов с мансардой. Как мы уже знаем, дома с мансардами любят за отличное сочетание стоимости и получаемой полезной площади жилья. Однако какие габариты строения позволяют снизить количество отходов стройматериалов и тем самым сократить траты на возведение дома? Как известно, материалы, использующиеся для постройки каркаса и стропильной системы, имеют длину около шести метров. Следовательно, дома размером 6 на 6 являются одним из самых привлекательных вариантов бюджетного строительства и пользуются огромным спросом.
Проект дома 6*6
Типичный каркасный дом с мансардой не перегружен декоративными элементами снаружи и не имеет сложной планировки.


Каркасный дом 6*6 с мансардой 4*5
В таком варианте реализации каркасного дома мы получаем мансарду размером 4 на 5 метра. В случае, если к дому будет пристроена терраса, то обустройство общего капитального основания придаст устойчивость всей каркасной конструкции.
Дом с нависающей мансардой
Такой проект представляет собой каркасный дом с просторной террасой и мансардой. Использование подобного подхода позволяет увеличить площадь второго этажа. Террасу можно расположить как спереди здания, так и сбоку.


Как можно улучшить внешний вид каркасного дома с мансардой размерами 6 на 6 метров? Стоит обратить внимание на внешнюю отделку дома. Существует несколько подходов к ее реализации.
Первый из них – создать отделку в классическом американском стиле из винилового сайдинга и металлической черепицы. Второй – использование мягкой черепицы и декор фасада в стиле фахверк. Стоимость реализации двух вариантов в принципе схожая. Какой придется вам по душе – тот и будет радовать вас годами.
Еще фасад здания можно украсить с помощью декоративных архитектурных элементов. Один из них – добавление к фасаду эркера.
Он дает возможность не только улучшить внешний вид дома, но и создать уютный интерьер. Вместе с использованием двухскатной кровли эркер впечатлит не только ваших друзей, знакомых и соседей, но даже профессиональных строителей каркасных домов.
Помимо этого к дому можно пристроить балкон на втором этаже чтобы иметь возможность любоваться звездным небом не выходя из здания.
Балкон подходит к использованию вместе с «ломанной» крышей или мансардой с высоким коньком. К слову о кровле. Ее тоже можно сделать нетипичной. Среди вариантов:
- Неравноскатная крыша;
- Двухскатная с «кукшкой»;
- Полувальмовая или вальмовая.
Все перечисленное можно реализовать на базе дома размером «шесть на шесть». Кое-что можно обустроить и своими силами, почти ничего не затратив, а остальное придется возводить руками профессионалов за соответствующее сложности вознаграждение.
Дома до сотни квадратный метров
Помимо каркасных домов габаритами 6*6 существует масса других проектов с интересными планировками. Больше площади – больше пространства для реализации нестандартный решений по планировке и фасадам.
Дом 6*8
Подобный проект каркасного дома с мансардой дает возможность «поэкспериментировать» со сложностью кровли, использовав двухскатную форму с разными скатами, а также оптимизировать внутреннее пространство здания, разместив лестницу в просторном холле и сэкономив жилое пространство.


Еще возведение такого каркасного дома с мансардой позволяет установить «кукушку» на крыше использовав один скат кровли.
Дома больше 100 кв.м.
Некоторые люди полагают, что построить большой дом по каркасной технологии невозможно, однако зарубежный опыт показывает что это не соответствует действительности. Потому изучим проекты, рассчитанные на большую семью.


Дом 6*10
Отличительная черта такого каркасного дома с мансардой может заключаться в планировке. Так, второй этаж можно использовать под обустройство огромной спальни с выходом на балкон.
Каркасный дом 8*10
Подобный дом можно возвести с вальмовой кровлей, что позволит существенно увеличить полезную площадь мансардного этажа, получив при этом фактически полноценный двухэтажный дом.


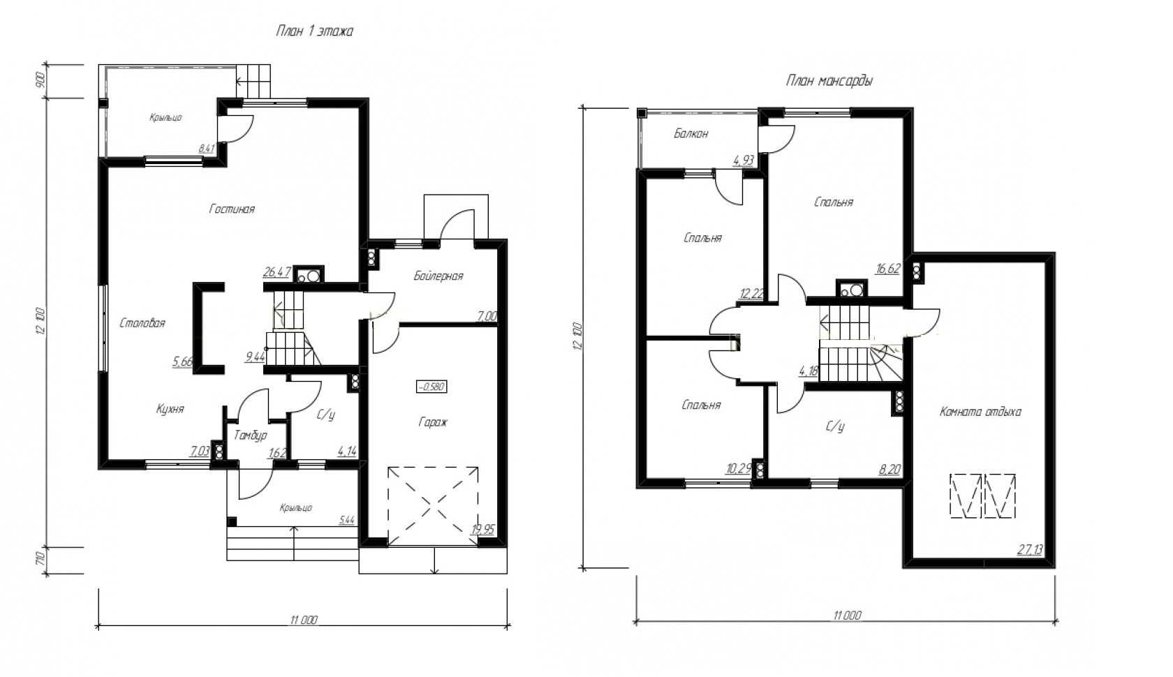
Дом с мансардой 11*12
В конце статьи у нас на обзоре каркасный дом с мансардой, имеющий сложную планировку. Постройка подобного здания требует привлечения большой бригады строителей и специальной техники, а также создания сложного плана, в котором будет учтена каждая мелочь, каждый элемент конструкции. Конечно, профессионалы могут построить такой дом всего за несколько месяцев. Однако построить подобный каркасный дом с обустроенной мансардой своими руками будет проблематично.

