Многие городские жители имеют небольшие земельные участки за пределами мегаполисов. Кто-то их использует под огород, а кто-то мечтает обустроить место для комфортно времяпровождения летом в отпуске или просто на выходные и праздничные дни. Во втором случае без небольшой постройки, в которой можно было бы переночевать либо скрыться от дождя, просто не обойтись. Если территория небольшая, оптимальное решение – возвести небольшой каркасный дом 5 на 6 метров.


Преимущества и недостатки каркасного жилья небольших размеров
Строения, возведенные по каркасной технологии частного домостроения, имеют множество достоинств, например:
- Возведение небольшого каркасного домика на даче не требует значительных вложений. Это связано с простотой фундамента, использованием наиболее доступных и недорогих стройматериалов из древесины и простой отделки;
- Быстрота выполнения монтажных работ. Возвести постройку по типовому проекту каркасных домов 5х6 в летний период можно в течение недели;
- Небольшую жилую площадь легче содержать в постоянной чистоте;
- Такое сооружение может себе позволить каждый гражданин со средней заработной платой.


Но, как и у любого другого строительного объекта, у таких строений есть и свои недостатки:
- Такой дачный домик рассчитан на комфортное проживание не более 2-х человек;
- Небольшая площадь здания требует достаточно рационального использования внутреннего пространства. В подобном здании сложно обустроить все необходимые бытовые помещения, правильно спланировать отдельные зоны для работы и отдыха.
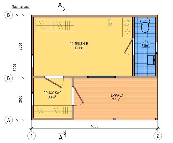
Планировка здания
Каркасный дом 5х6 можно возвести по готовым типовым проектам с разной планировкой, например:
- Гостиная по типовому проекту – 10-12 м2;
- Спальное помещение – 5 м2;
- Кухня – 4 м2;
- Небольшая прихожая.
К такому домику также можно дополнительно пристроить закрытую либо летнюю террасу.

В доме подобных размеров также можно разместить: тамбур, небольшую гостиную, кухню, спальню и совмещенный санузел. Дополнительно пристроить веранду или террасу.
Фундаментное основание
На первом этапе строительства под каркасный загородный дом размером 6х5 метров, в т.ч. легкий одноэтажный, обустраивают фундаментное основание.
Для жилых домов по каркасной технологии используют столбчатый, свайно-винтовой или ленточный фундамент. На выбор основания влияют следующие параметры:
- Тип грунта на строительной площадке;
- Уровень прохождения подземных вод, промерзания грунта;
- Общий вес здания.

После выбора типа фундамента выполняется подготовка участка, расчет необходимых материалов для его возведения. При выборе столбчатого или свайного фундамента дополнительно рассчитывают шаг установки опорных столбов.
Возведение каркаса
После возведения фундаментного основания выполняется его гидроизоляция, обустраивается нижняя обвязка из деревянного бруса и черновое напольное покрытие из строительной доски. Далее можно начинать непосредственно возводить сам каркасный дом 5х6 м.


Возведение стен согласно каркасной технологии начинают с установки опорных стоек по углам здания. Далее выполняется монтаж промежуточных вертикальных стоек по всему периметру, а также обустройство внутренних межкомнатных перегородок. Шаг монтажа уже рассчитан в типовом проекте.


Между опорными вертикальными балками монтируются горизонтальные поперечины. Для жесткости каркаса между вертикальными опорами и фундаментной обвязкой дополнительно фиксируют укосины.

Поверх готового каркаса постройки по периметру делают обвязку из деревянного бруса. Конструкция аналогична фундаментной обвязке. Именно к обвязочному брусу в дальнейшем крепится стропильная конструкция кровли.
Стропильная конструкция
Система стропил является несущей конструкцией кровли здания. От качества ее обустройства зависит не только надежность крыши, но и то, насколько будет устойчив сам дом размером 6 на 5 метров. Одноэтажный каркасный жилой дом по типовому проекту предусматривает определенный порядок монтажа стропил.


В первую очередь подбирается тип стропильной системы. Для двускатной крыши она будет состоять из отдельных ферм, устанавливаемых с определенным шагом, рассчитанным на этапе проектирования постройки. Каждая ферма состоит из двух стропильных ног.
При этом для небольших каркасных домов 5х6 можно использовать как висячую, так и наклонную стропильную конструкцию.
Далее необходимо подобрать стройматериал для изготовления кровельного каркаса и установить на несущие стены постройки мауэрлат – деревянные брусья определенного сечения (зависит от массы стропильной конструкции и кровельного покрытия).
На мауэрлат монтируют готовые фермы из стропил. Для их фиксации в брусьях мауэрлата с шагом до 1,5 м изготавливают специальные пазы. Впоследствии в них вставляют нижние части стропильных ног и дополнительно скрепляют с обвязочным брусом. При этом окончания стропил должны выходить за каркасный дом 5х6 примерно на 30-40 см.


Далее по стропильной конструкции выполняется деревянная обрешетка, непосредственно к которой крепится финишное покрытие крыши.


Теплоизоляция постройки
Проект каркасного дома 5х6 предусматривает обязательное утепление здания. От этого будет зависеть комфортность проживания хозяев в холодный период года.


Для домов, возводимых по каркасной технологии, чаще всего используют плитные теплоизоляционные материалы, изготовленные на основе минеральной ваты, полистирола либо пенопласта.
Утепление стен каркасных домов 5 на 6 выполняется в несколько этапов:
- Предварительная подготовка стеновых поверхностей. Каркасная конструкция стен очищается от различных загрязнений, пыли. Обязательно необходимо удалить все торчащие гвозди, чтобы не повредить теплоизоляцию, а все щели забить монтажной пеной;
- Далее выполняется обрешетка, на которую кладут плиты утепления;
- Каркас здания полностью обшивают по всему периметру пароизоляционной пленкой. Для ее фиксации используют строительный степлер и скобы. Заключительный этап – черновая обивка стен гипсокартонными плитами либо ОСБ панелями.


Далее выполняется фасадная отделка, материалы для которой каждый застройщик подбирает на свое усмотрение.