Вот представьте: лето, дача, прохлада комнат после жарких лучей солнца, наслаждение красивым видом заката на террасе дома с кружкой чая, послеполуденная сиеста в тени вьющегося по балкону винограда. Или вот так: зима, загородный коттедж, приятный отдых в теплой уютной гостиной после активного дня на лыжах, санках, игры с детьми в снежки; треск дров в камине, завывание ветра за окном. Все эти эмоции владельцы городских квартир могут испытать, лишь приобретя загородный дом, дачу или коттедж. Однако такая покупка, как и постройка громоздкого кирпичного или каменного дома, не всем по карману. В подобных ситуациях опытные застройщики предлагают своим клиентам такой вид постройки, как каркасный дом. Такие сооружения, чаще всего, предлагаются строить не «с нуля», а уже по готовым шаблонам. Проект каркасного дома, размером 6х6, является наиболее популярным среди заказчиков.


Почему именно он? Потому что на этой площади можно вместить все необходимое, как для круглогодичного проживания, так и для сезонного отдыха, а максимально рациональное использование пространства позволяет создать комфортные и уютные комнаты.
При обращении в компанию застройщика, вы получаете, в качестве предложений, готовые проекты. Они состоят из следующих частей:
- Чертеж-схема;
- Визуализация;
- Описание.
При желании, в шаблон можно вносить изменения, как по планировке комнат, расстановке перегородок, так и по стоимости расходных материалов.
В чем состоит особенность каркасных домов?
Любая технология строительства имеет как свои плюсы, так и минусы. В одном выигрывает, в другом – теряет. Каркасная технология не является исключением. В данной ситуации необходимо четко понимать, какой из недостатков легко исправим, или не так значителен, а какой – доставит в будущем немало хлопот.
На рынке недвижимости каркасные дома заняли свою весомую чашу, и полюбились многим благодаря своей низкой стоимости, большой скорости постройки и высокому качеству. С помощью данной технологии клиент может получить желаемый дом в короткие сроки, а заказчик – возвести строение быстро, качественно и надежно.
Широкой популярностью пользуются именно небольшие дома, поэтому подрядчики, в лице профессиональных строителей, архитекторов, дизайнеров, имеют свои наработки в планировании каркасного дома размером 6х6. Это то, что касается стандартных проектов.
Во время обсуждения с клиентом его предпочтений готовятся доработки в уже готовый дом или разработка абсолютно нового уникального проекта, который будет соответствовать именно вашим потребностям и предпочтениям. В таких проектах, когда ориентир установлен на желание заказчика, происходит перепланирование пространства, которое составляет полезную площадь таким образом, что оно может увеличиваться или уменьшатся в размерах.
Проекты каркасных домов, размером 6 на 6, зачастую выбирают семьи с количеством до пяти человек.
Как ни странно, если они заказывают одноэтажную постройку, то планировка почти совпадает с обычной однокомнатной квартирой. В таком помещении свободное пространство достаточно ограничено, и используется не рационально, поневоле создавая тем самым неудобства хозяевам. При такой конструкции в одной комнате трем взрослым будет находиться не очень комфортно. Такую планировку клиенты выбирают в том случае, если подрядчик не смог донести смысл того, что можно составить чертеж такого дома, который будет соответствовать именно его требованиям.
Полезная площадь дома значительно увеличивается добавлением мансарды, которая, по сути, является одновременно и вторым этажом, и кровлей. Как вариант, можно рассмотреть пристройку просторной веранды. Она не займет много времени и финансовых ресурсов, поскольку является не отапливаемым помещением, и не требует вспомогательных материалов для утепления.
Дополнительным преимуществом любого каркасного дома 6х6 является то, что при его постройке применялись цельные щитовые элементы, которые уменьшают в разы количество стыков и, соответственно, щелей между брусьями. Поэтому «мест продувания» будет меньше, как и затрат на их прогревание, а дом станет теплее и уютнее.
Дом размером 6 на 6 достаточно небольшой. Это позволит организовать оставшееся пространство на земельной территории по своему усмотрению: разбить сад или огород, установить бассейн, открытую беседку или просто красиво оформить ландшафтный дизайн.


Одноэтажный дом 6х6
Данное квадратное строение содержит только те помещения, которые требуются для базового проживания людей. Размеры комнат такие, которые позволят вместить необходимую мебель. Ниже следуют стандартные размеры различных по предназначению помещений:
- 3 м² – тамбур или прихожая;
- 1,5 м² – санузел;
- 13,5 м² – кухня, совмещенная с гостиной;
- 9 м² – спальня.
Данные площади, хоть и небольшие, но позволяют реализовать свою смысловую нагрузку, а отсутствие коридоров и кладовых – максимально полезно использовать пространство.
Самым главным недостатком одноэтажного дома такого размера является ограниченность площади. Такие дома следует выбирать семьям, состоящим из двух-трех человек. Если предположить, что каждому человеку нужна отдельная комната, то у семьи из четырех и более членов будут возникать определенные неудобства и теснота. А учитывая периодические праздники и визиты гостей, дом абсолютно не будет удовлетворять потребности семьи в комфорте.
Для гостиной комнаты обычно предусматривают максимально большое пространство, ввиду того, что там будет собираться семья в свободное ото сна и отдыха время, приниматься гости и проводиться разнообразные мероприятия. Личные комнаты, наоборот, занимают небольшую площадь, поскольку используются только в качестве места для релакса.
Каким бы ни было по объему помещение, в нем обязательно должен находиться оконный проем – человеку необходимы солнечные лучи, как источник витамина Д.
Санузел предпочтительнее сделать совмещенным. Благодаря такому ходу уменьшится площадь, необходимая для установки сантехники (унитаз, раковина, душевая кабина или ванна, биде), а также затраты на материалы отдельно для ванной комнаты и туалета. Для большей экономии свободного места можно установить душевую кабину вместо громоздкой ванны, всю бытовую технику (такую, как стиральная машина) расположить в другой комнате, например, коридоре или кухне.


Двухэтажный дом 6х6
Если вы остановили свой выбор на двухэтажном доме размерами 6 на 6, готовьтесь к тому, что вы встретите огромное количество проектов. Большой выбор стандартных шаблонов объясняется тем, что, имея увеличенную вдвое площадь, у застройщика появляется большое поле для фантазии, варианты, которые подходят для семей с различным количеством человек. Все они отличаются между собой параметрами и расположением комнат, их количеством. Конечно же, этот вариант станет более интересным для семьи из четырех и более человек, чем одноэтажный.
Несомненно, и стоимость такого дома станет, как минимум, в два раза выше. Ведь, фактически, строятся два одноэтажных дома, только на одном основании и с одной кровлей. Стоит заранее подготовиться к значительным затратам на лестницу. Но, если внимательно подумать, аналогичный двухэтажный дом с этой же лестницей, но изготовленный из кирпича или камня, вышел бы в три, если не больше, раза дороже.
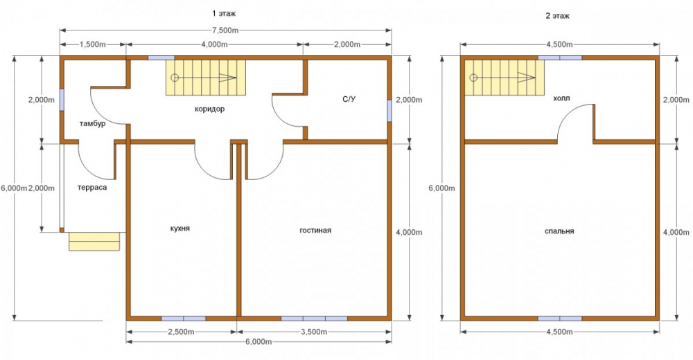
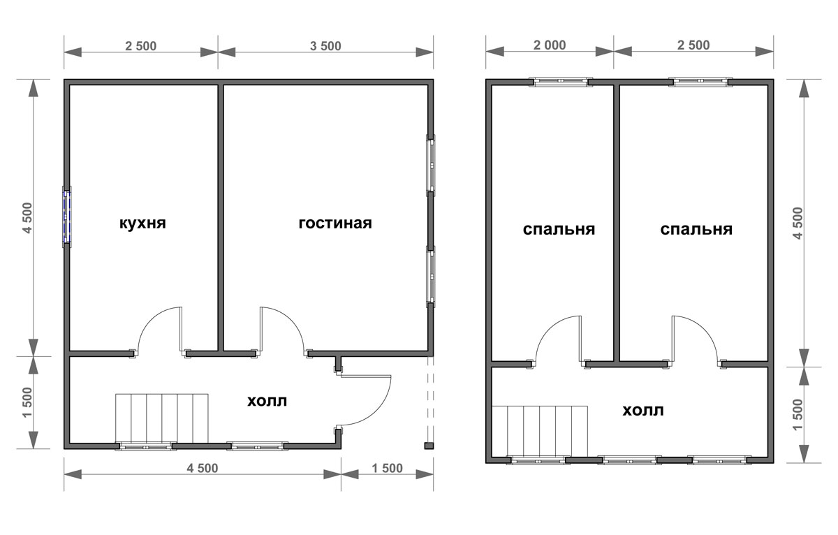
Наиболее удобное следующее расположение комнат. На первом этаже: гостиная, прихожая, коридор, игровая комната, зал, кухня, санузел. При желании, на втором этаже можно разместить второй санузел, но это будет финансово накладно. На втором этаже удачно будет расположить спальни хозяев, а также помещения для отдыха гостей. Если есть потребность в личном кабинете или библиотеке, их тоже следует расположить на втором этаже. При такой планировке лишний шум и движение не помешают спокойному отдыху или работе.


Подрядчики советуют разместить на втором этаже балкон. Он станет дополнительным плюсом в организации уюта в вашем доме.
Летом на нем можно посадить цветы или зелень для кухни, по вечерам наслаждаться заказами солнца.
Каркасный дом 6х6 с мансардой
Такие дома являются очень выгодными финансово, поскольку позволяют, при почти одинаковых затратах, увеличить полезную площадь практически вдвое. Кроме этого, мансарда является очень интересным решением в плане реализации дизайнерских проектов, даже несмотря на то, что не считается полновесным этажом, а ее ограждающие конструкции и являются кровлей.
У некоторых подрядчиков возникают проблемы в том, что касается эффективного распределения площади в доме с мансардой. Чаще всего планировка является аналогичной двухэтажному дому. Прихожая, коридор, гостиная, кухня и санузел располагаются на первом этаже, а на мансарде – комната отдыха. Важно учитывать, что потолок будет несколько ниже, чем в обычной комнате, некоторым это не очень по душе.
На всей площади мансарды высота потолка будет различаться. Самая высшая точка – в середине комнаты, и постепенно спускается к краям. Такая особенность может вызвать трудности при выполнении бригадой отделочных работ, и при выборе хозяевами мебели. В данной ситуации может выручить мебель, выполненная по индивидуальным размерам.
Проектом каркасного дома 6 на 6 с мансардой, так же, как и в двухэтажном доме, должна предусматриваться лестница. При выборе шаблона, или при разработке индивидуального проекта дома, желательно проследить, чтобы лестница была установлена в подходящем месте, не контактировала с предметами другой мебели, не закрывала дверные проемы или окна.


Дизайнерскими решениями под лестницей устанавливаются гардеробный шкаф или кладовая для хозяйственных материалов.
Интересной задумкой является установка винтовой лестницы – она придаст дому особый шарм и сэкономит пространство.
В чем состоят преимущества каркасного дома?
Каркасный дом, размером 6 на 6, с мансардой, так же, как и двухэтажный, – это проект для большой семьи. Такая постройка имеет следующие характеристики:
- Отличные свойства сохранения тепла, даже в самых суровых условиях; способность создать нужный микроклимат при перепаде температур с экстремального холода на жару;
- Низкие затраты на установку фундамента, что имеет большое влияние на всю конечную стоимость проекта дома;
- Легкая каркасная конструкция, которая отличается высокой скоростью установки;
- Эффективное применение полезной площади, расширение ее за счет мансарды, второго этажа и балкона.
Самой большой популярностью пользуются проекты домов с мансардой.


Очень часто люди, которые до этого не сталкивались с каркасной техникой постройки дома, впервые узнают о ней при строительстве бани, гаража на даче, загородного коттеджа с мансардой или полноценного зимнего загородного дома. Именно в таких ситуациях заметны преимущества такой техники, проявляется ее простота и скорость постройки.
При выборе каркасного дома 6х6 не стоит заострять свое внимание на его скромных размерах. Такие строения под ключ имеют оптимальное соотношение цены и качества, и станут решающими при выборе технологии строительства и самого дома. Пусть лимитированный бюджет не станет для вас обузой и тем фактором, который определит выбор именно каркасных домов.
Такими же важными являются такие критерии, как площадь земельного участка и количество людей в семье, частота посещения дома родственниками и друзьями. Если учесть все эти моменты, можно разработать индивидуальный дом или воспользоваться подходящим шаблоном.
В реалиях современного мира необходимо учитывать повышение стоимости материалов, что неизбежно приведет к увеличению общей стоимости дома. Перед тем, как обращаться к подрядчику, желательно внимательно рассмотреть цену, которую он ставит за выполнение самой работы, и прибавить к ней затраты на материалы.
Конечно же, можно нанять бригаду строителей, которые не имеют статуса юридического лица. Это выйдет дешевле, но не стоит забывать, что такая группа людей не несет никакой ответственности за выполненную работу, и в случае появления претензий по качеству дома, предъявлять их будет некому.