Каркасная технология частного домостроения пришла в Россию с Запада. Такие постройки сегодня на пике популярности во многих странах мира. Особенно востребован среди частных застройщиков двухэтажный каркасный дом, предназначенный для круглогодичного проживания, размером 8 на 8 метров. Такую постройку можно возвести за один сезон с минимальными капиталовложениями.


Особенности каркасной технологии
Основной несущей конструкцией жилого дома, возведенного по данной технологии, является каркас. Далее его обшивают снаружи и внутри листовыми пиломатериалами, внутрь закладывают теплоизоляционный материал, который защищают со стороны улицы гидроизоляцией, а со стороны помещений пароизоляционной пленкой.


Каркасные постройки получаются достаточно легкими, поэтому для них используют простые фундаменты: ленточный, столбчатый и свайно-винтовой. Одноэтажные дачные домики, предназначенные для сезонного проживания, обычно перекрывают односкатной крышей, а полноценные жилые дома – двускатными кровельными конструкциями.
Данная технология строительства считается бюджетной. Ее очень часто используют не только для возведения жилых коттеджей, но и прилегающих хозяйственных построек, гаражей и бань.
Основные преимущества каркасных жилых построек
Двухэтажный каркасный жилой дом размером 8х8 метров имеет множество достоинств. Стоит отметить основные:
- Скорость монтажа здания – возможность возвести дом, начиная от фундамента под ключ всего за несколько месяцев;
- Минимальные расходы на строительство – дешевые стройматериалы, в т.ч. не требуется обустройство тяжелого железобетонного сплошного фундамента, что значительно снижает финансовые расходы, временные и трудовые затраты;
- Облицовочные работы можно осуществлять сразу после возведения здания, так легкие каркасные конструкции не дают усадку;
- При использовании свайно-винтового фундамента, строительными работами можно заниматься в любой период года, в т.ч. зимой.
Возведение каркасного дома своими руками
Строительство любого сооружения начинается с его проектирования. Даже учитывая простоту конструкции каркасного жилого дома размером 8х8 метров, рекомендуется предварительно рассчитать все необходимые стройматериалы, чтобы не покупать лишних, составить подробный план выполнения монтажно-отделочных работ. Это поможет значительно сократить расходы и время на строительство.


Далее необходимо подготовить строительную площадку, убрать всю растительность вместе с верхним слоем грунта, сделать разметку под фундамент.
Следующий шаг – выбор фундаментного основания, учитывая размеры и общую массу будущего дома, в т.ч. характеристики почвы. Лучше всего для этого заказать геологическое обследование строительного участка.


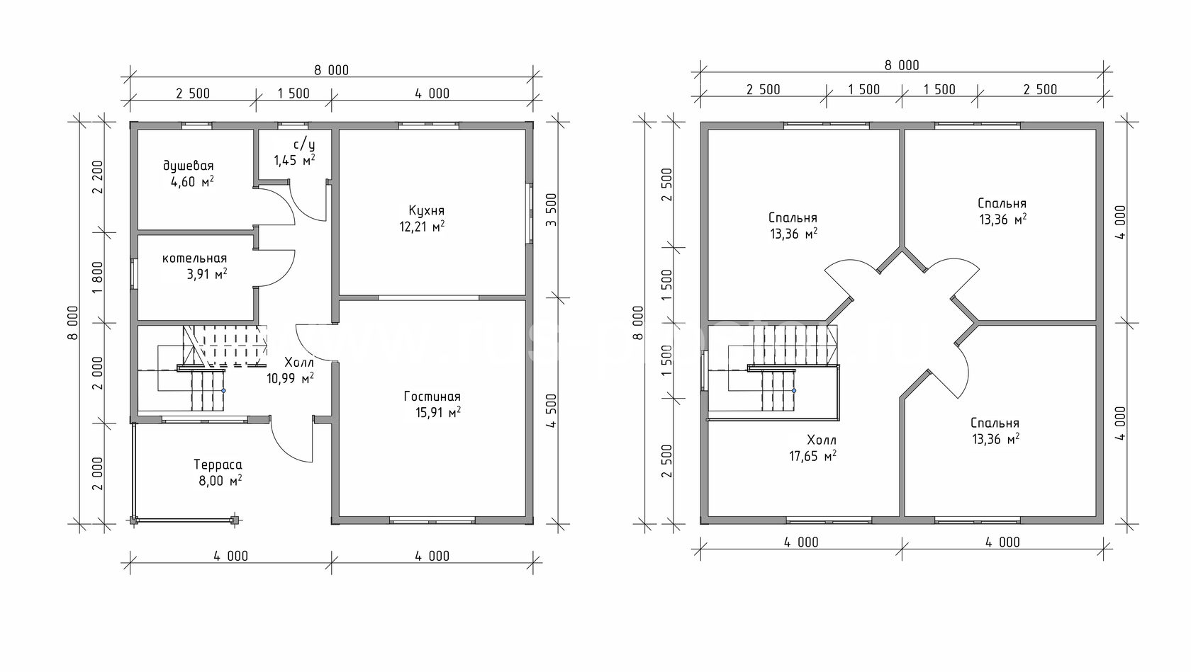
Проект каркасного жилого дома размером 8х8 метров двухэтажный можно подобрать в интернете бесплатно. Здесь многие строительные компании рекламируют типовые проекты каркасных построек и предлагают собственные строительные услуги. Ниже представлен один из вариантов планировки для подобного строения:


Как правило, под такое здание подойдет легкий мелкозаглубленный ленточный фундамент, столбчатый либо свайно-винтовой. В любом случае после монтажа основание покрывается гидроизоляционным материалом, обустраивается нижняя обвязка, производится утепление и настил чернового пола. Только после этого приступают к возведению несущей конструкции здания – деревянного или металлического каркаса.


Монтаж каркасной конструкции
Когда фундамент готов, можно приступать к возведению каркаса жилого дома. Если использовался ленточный бетонный фундамент, ему необходимо дать время для полного схватывания и высыхания. При этом стоит помнить, что заливку железобетонных оснований можно осуществлять только в теплый период года. А свайно-винтовой фундамент можно обустраивать даже зимой.
Для сборки каркасной силовой конструкции можно использовать деревянный брус или стальные профилированные трубы.
Как правило, металлические детали стоят дорого, поэтому большинство частных застройщиков выбирают более дешевые пиломатериалы. Конечно же, для возведения двухэтажного жилого дома или с дополнительным жилым мансардным помещением рекомендована металлическая конструкция, но и при правильном выборе сечения бруса деревянный каркас также получится достаточно крепким и надежным.


Единственное что необходимо учесть – все элементы конструкции из древесины требуют обязательной предварительной обработки специальными составами (антипиренами, антисептиками) от гниения, возгорания, грызунов и прочих негативных воздействий.
Возведение каркасной конструкции начинается с вертикальных опорных стоек. Сначала их устанавливают по углам здания, затем по всему периметру с расчетным шагом по проектной документации. При этом расстояние между силовыми стойками не должно превышать 60 см – для одноэтажных домов, 40 см – для двухэтажных коттеджей.


Между собой вертикальные опоры соединяют горизонтальными поперечинами, к фундаментной обвязке их крепят стальными уголками, анкерами и дополнительными укосинами. Поверх каркасной конструкции также делается обвязка из бруса, к которой вертикальные стойки крепятся аналогично – уголками и укосинами.


Монтаж межэтажного перекрытия, возведение кровли
Постройка загородного двухэтажного каркасного жилого дома площадью 8 на 8 метров требует качественного обустройства межэтажного перекрытия, т.к. на втором этаже также планируется создание жилых комнат. Поэтому половое основание выполняется аналогично обустройству пола первого этажа. Обязательно выполняется гидро- и шумоизоляция основания.


Стены второго этажа возводятся так же, как и стены первого этажа, поверх каркаса делается обвязка, непосредственно к которой будет крепиться стропильная система.
Как правило, для таких зданий чаще всего используют двускатные кровельные конструкции. Сначала устанавливают стропильные фермы, крепят их к верхней обвязке второго этажа (выступает мауэрлатом) и коньковому брусу. Для изготовления стропил используют деревянный строительный брус сечением 5х15 см. Конструкцию гидроизолируют и утепляют. Поверх стропильной системы обустраивают обрешетку, непосредственно к которой фиксируют кровельное покрытие.


Крыши двухэтажных домов каркасной конструкции размером 8 на 8 метров обычно перекрывают мягкой или металлической черепицей, ондулином. Угол наклона скатов рассчитывают так, чтобы зимой на крыше не задерживался снег и не создавал дополнительную весовую нагрузку на кровельное покрытие и конструкцию здания в целом.


Облицовка жилого дома
Главное преимущество каркасных зданий – это их легкость, обустройство легких фундаментных оснований, благодаря чему они практически не дают усадку в процессе эксплуатации.
Поэтому после возведения стен и крыши таких домов, установки окон и дверей можно сразу приступать к фасадной и внутренней финишной отделке. Облицовочные материалы каждый застройщик подбирает, основываясь на собственные предпочтения или предварительно подготовленный дизайнерский проект.