Любой из проектов каркасных домов 8 на 9 прекрасно подойдет для комфортного постоянного проживания небольшой семьи. Как показывает практика, большинство владельцев загородных 2-х или 3-х этажных коттеджей редко используют комнаты верхних ярусов здания. Поэтому перед тем, как строить загородный многоэтажный дом, стоит подумать о такой необходимости. Ведь это не только лишние затраты на строительство, но и дальнейшие расходы на обслуживание помещений верхних этажей (меблирование, ремонт, отопление и пр.).


Преимущества одноэтажных каркасных жилых домов 8 на 9
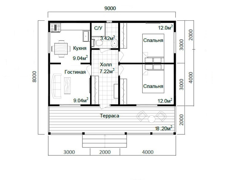
Одноэтажный каркасный дом 8х9 избавляет своих хозяев от подъема тяжелой габаритной мебели в комнаты верхних этажей. Нет необходимости обустраивать лестницу для подъема на второй этаж, которая занимает немалое пространство первого этажа – до 8 м2.
В одноэтажном каркасном доме 8х9 более комфортный микроклимат, чем в двухэтажном коттедже. Как правило, в первом случае весь воздух сосредотачивается на уровне единственного первого этажа, соответственно быстрее и более равномерно прогревается.


Значительно проще организовать эффективную систему вентиляции с рекуперацией отработанного воздуха в одноэтажном здании.
Также стоит отметить, что утепление такой постройки обойдется намного дешевле, а расходы на отопление в зимний период будут существенно меньше.
Недостатки одноэтажных коттеджей каркасной конструкции
У каркасных домов 8х9, как и у зданий других конструкций и размеров, есть свои недостатки.
Недостаточно эффективная эксплуатация земельного участка. Двухэтажное сооружение аналогичной жилой площади занимает в 2 раза меньшую территорию.


Стоимость 1 м2 двухэтажной постройки или коттеджа с мансардой меньше, чем одноэтажного дома аналогичной площади.
Основные этапы возведения дома 8 на 9
После того, как каркасный жилой дом 8 на 9 уже спроектирован на бумаге, при этом независимо одноэтажный или двухэтажный, подготовлены все необходимые стройматериалы, инструменты и строительная площадка, можно приступать непосредственно к возведению постройки. Но важно соблюдать все требования технологии каркасного домостроения и последовательность выполнения монтажных работ.
Обустройство фундаментного основания
Одно из главных преимуществ каркасных зданий – они достаточно легкие и не требуют обустройства тяжелых фундаментных оснований.
Варианты фундамента для одноэтажного дома 8х9 по каркасной технологии:
- Мелкозаглубленный ленточный – на 0,3-0,8 м вглубь грунта;
- Плитный – минимальная толщина железобетонных плит 30 см;
- Столбчатый – отдельные бетонные или кирпичные опоры, связанные между собой бетонной лентой;
- Свайно-винтовой – в грунт на 2-12 м заглубляют буронабивные, винтовые либо забивные сваи.

Небольшой каркасный дом 8х9 рекомендуется устанавливать на столбчатое либо свайно-винтовое фундаментное основание. Но если грунт позволяет, можно обустраивать и мелкозаглубленный ленточный фундамент.
Выполнение обвязки фундамента
Независимо от выбранного типа фундаментного основания, обязательно выполняется его обвязка перед возведением каркаса.
Предварительно на фундамент укладывают слой гидроизоляции, затем обвязочный брус. Его сечение чаще всего составляет 15х15 см. Укладка стройматериала осуществляется по всему периметру основания постройки.


Пиломатериал обязательно должен быть обработан специальными защитными составами против влаги, гниения и грызунов.
Поверх обвязки размещают и надежно фиксируют лаги сечением 15х4 см – деревянные доски, укладываемые на ребро. Они являются основанием для обустройства черновых полов. Расстояние между лагами обычно составляет 60 см.
На данной стадии строительства обязательно выполняется теплоизоляция основания. В качестве утеплителя используют минеральную вату, экструдированный пенополистирол либо пенопласт.

На слой теплоизоляции монтируют черновое покрытие пола. В качестве расходного материала используют фанерные листы толщиной 1,5 см либо строительную доску 2,5-3 см.
Возведение каркасной конструкции здания
Стены каркасного дома 8х9 можно возводить двумя способами:
- Сборка элементов конструкции на месте установки каркаса здания;
- Сборка отдельно каркаса каждой стены на горизонтальной поверхности (на земле), затем установка его на свое место.
Вторая техника намного проще и быстрее. Так возводят жилые дома с применением СИП панелей, предварительно изготовленных на заводе. Но для подъема готовых стеновых конструкций может понадобиться подъемная техника, а это лишние затраты.


Монтаж межэтажного (чердачного) перекрытия
После возведения стен каркасного здания выполняется их верхняя обвязка и обустройство перекрытия, которое является основанием потолка первого этажа и полом чердака. Технология монтажных работ аналогична выполнению фундаментной обвязки и обустройству чернового пола первого этажа.


Возведение кровли
По технологии каркасного домостроения допускается обустройство разных кровельных конструкций: односкатных, двускатных, ломаных, шатровых либо вальмовых.


На каркасный дом 8х9 лучше всего устанавливать стандартную недорогую двускатную кровлю.
Обшивка и теплоизоляция каркасной постройки
Все каркасные дома требуют дополнительного утепления, при этом, как стен, так и половых и потолочных оснований.
В качестве теплоизоляционного материала используют минеральную вату, эковату, пенопласт, экструдированный пенополистирол.


Утеплитель укладывают между горизонтальными и вертикальными балками, затем каркас обшивают снаружи и внутри фанерными или плитными пиломатериалами.
Монтаж внутренних перегородок
Для зонирования внутреннего пространства жилого дома возводят внутренние дощатые или каркасно-обшивные перегородки. Они помогают разделить здание на отдельные комнаты.

Такие перегородки могут быть однослойными и многослойными. Второй вариант выходит дороже и уменьшает полезное пространство внутри постройки, но он обеспечивает тепло- и звукоизоляцию помещений.
Наружная облицовка здания
Для фасадной отделки каркасного дома 8х9 можно использовать:
- Фиброцементные панели;
- Декоративный кирпич;
- Металлический либо виниловый сайдинг;
- Декоративную штукатурку;
- Деревянную вагонку.


Внутренняя отделка
Отделка жилого дома внутри состоит из нескольких отдельных этапов: финишного покрытия полового и потолочного оснований, облицовки стен.
Монтаж чистового пола
По черновому основанию делается деревянная основа из досок. Затем выполняется гидро-, тепло- и пароизоляция основания. Защитный изоляционный пирог накрывают ОСБ плитами либо досками и только после этого монтируют финишное покрытие, в качестве которого можно использовать паркет, ламинат или линолеум.

Подшивка потолка
Между опорными брусьями чердачного перекрытия укладывают теплоизоляцию, затем обустраивают обрешетку, к которой фиксируют гипсокартонные плиты. Далее выполняется финишная облицовка потолка.

Отделка стен
Обычно стены в каркасных домах после утепления обшивают гипсокартоном, а затем уже выполняют облицовку.

В качестве финишного покрытия можно использовать любые материалы: обои, краску, декоративную штукатурку, плитку и пр.