Дома с двумя этажами – популярный вариант для строительства загородного коттеджа. Подобный формат позволяет разместить на небольшом участке просторное жилище для всей семьи. Общая жилая площадь дома увеличивается, при том спальни изолированы от шумных мест общего использования.


Каркасная технология строительства не предусматривает использования сложных и дорогих фундаментов. Каркас собирается из предварительно высушенной строганной древесины, утепляется, после чего облицовывается OSB плитами. В данной статье мы подобрали популярные проекты, по которым осуществляется возведение домов. Данные каркасные двухэтажные дома имеют широкую гамму планировочных решений, позволяющих выбрать оптимальный вариант для любой семьи.
Дома 50-100 кв.м.
Размер строения: 6 на 7
Площадь: 85 кв.м.




Этот простой дом можно легко возвести самостоятельно или силами небольшой строительной бригады за короткий срок. Использовать его можно хоть круглогодично, хоть сезонно – проект предусматривает все необходимое для комфортного проживания в любой период года.
Размер строения: 6 на 7.4
Площадь: 89 кв.м.




Данный проект представляет собой экономный и удобный дом, имеющий большие комнаты и предназначенный для проживания в течении всего года.
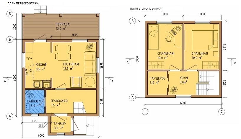
Размер строения: 6 на 6
Площадь: 72 кв.м.




Это недорогой дом маленькой площади с жилой мансардой, но при том позволяющий проживать в нем с комфортом. Его можно использовать как для отдыха летом, так для поездок на природу по весне или осени, а также в период зимних каникул.
Размер строения: 8 на 7.4
Площадь: 89 кв.м.




Проект представляет собой дом, имеющий небольшие комнаты и террасу, а также балкон.
Размер строения: 6 на 8
Площадь: 84 кв.м.




Простой бюджетный дом малой площади c террасой и жилой мансардой.
Размер строения: 6 на 10
Площадь: 96 кв.м.




Это весьма интересный вариант постройки дома небольшой площади. Он имеет террасу с одной стороны и утепленную веранду с другой. Пристроенную веранду можно использовать в качестве прихожей и котельной, где так же можно разместить стиральную машину.
Дома 100-150 кв.м.
Размер строения: 6 на 10
Площадь: 105 кв.м.




Данный дом быстро построить и в нем удобно жить, а стоимость строительства порадует ваш кошелек.
Размер строения: 6 на 10.5
Площадь: 121 кв.м.




Отличительной чертой данного проекта является крыльцо, над которым можно разместить балкон большой площади. Кроме того, можно пристроить гараж.
Размер строения: 8.5 на 9.7
Площадь: 148 кв.м.




Комфортабельный дом с очень красивым фасадом. Возможна установка камина в гостиной. Если требуется, то можно разделить кладовую на две части и сделать котельную в 9.5 квадратных метров.
Размер строения: 6 на 10
Площадь: 102 кв.м.




Отличительная черта проекта — крыльцо в уровень с домом, что придает ему эстетический вид. Во время заливки фундамента выполняется отлив ступеней крыльца, что позволяет сэкономить бюджет строительства и ускорить его темпы.
Размер строения: 6 на 10
Площадь: 120 кв.м.




Недорогой дом большой площади. Можно поменять котельную и санузел местами, либо организовать вход через последний. Возможна пристройка крыльца.
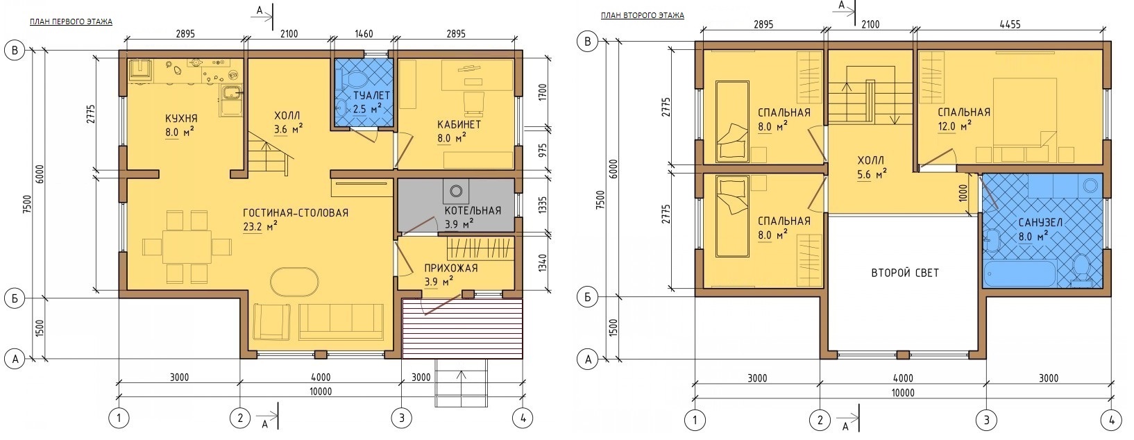
Размер строения: 6 (7.5) на 10
Площадь: 137 кв.м.




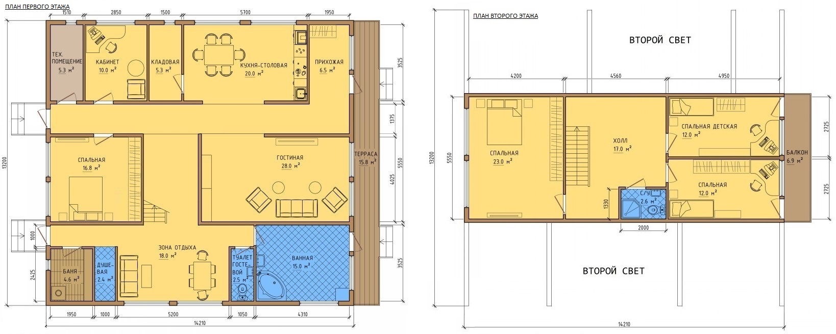
Данный дом является просторным, комфортным и при том недорогим жильем. Имеется второй свет. Дома подобного типа называются «Обителью ангелов». Их отличает наличие эркера со вторым светом либо без него.
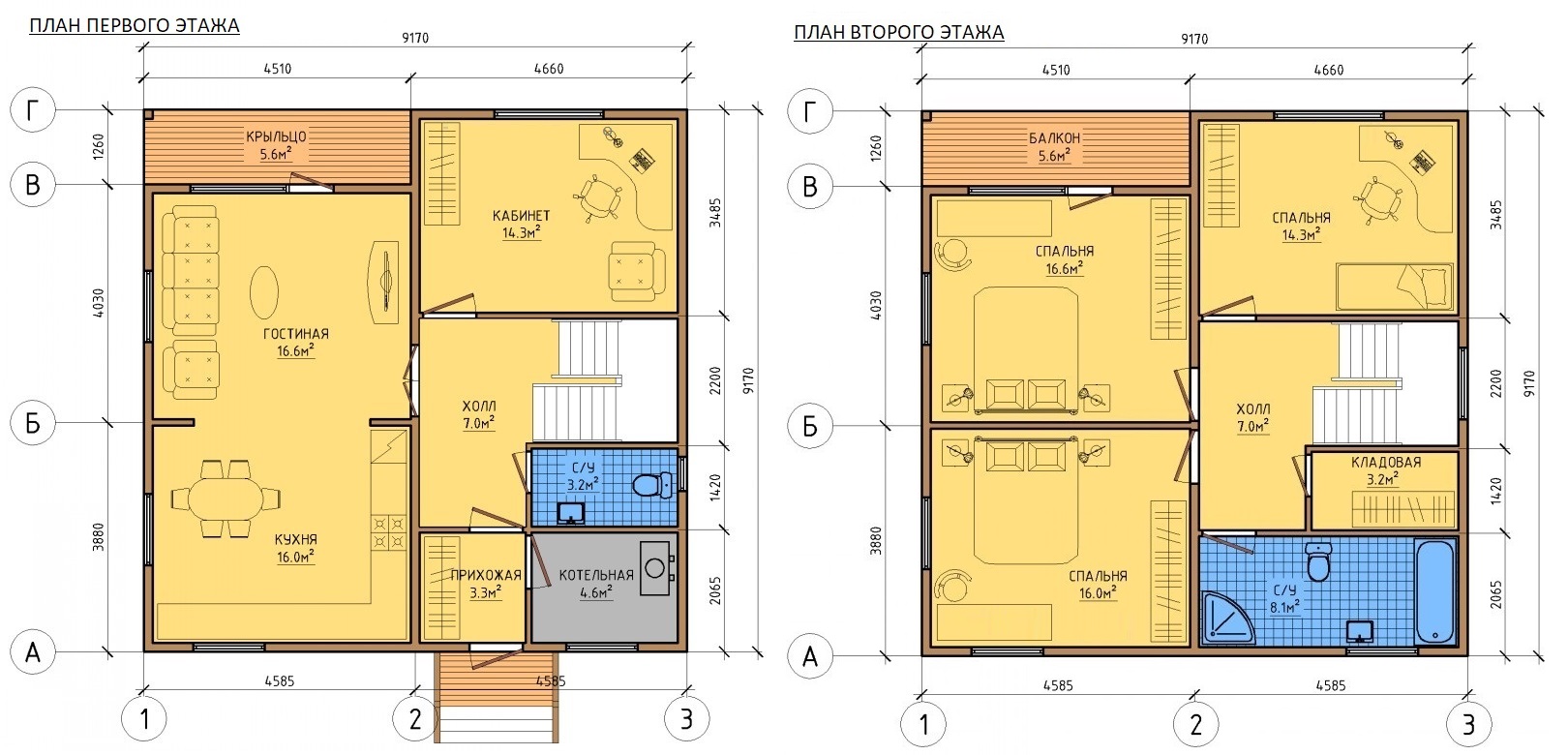
Размер строения: 8 на 9
Площадь: 147 кв.м.




Проект предполагает возведение компактного, комфортного и удобного дома за разумную цену. Можно обустроить угловое патио площадью в 15 квадратных метров. Ниши на втором этаже предназначены для установки шкафов-купе. Внешний вид фасада имеет классический стиль, что обеспечивается пропорциями строения и крышей.
Размер строения: 8 на 8
Площадь: 128 кв.м.




Просторный и бюджетный дом. Можно поставить камин, печь либо отопительный котел между кухней-гостиной.
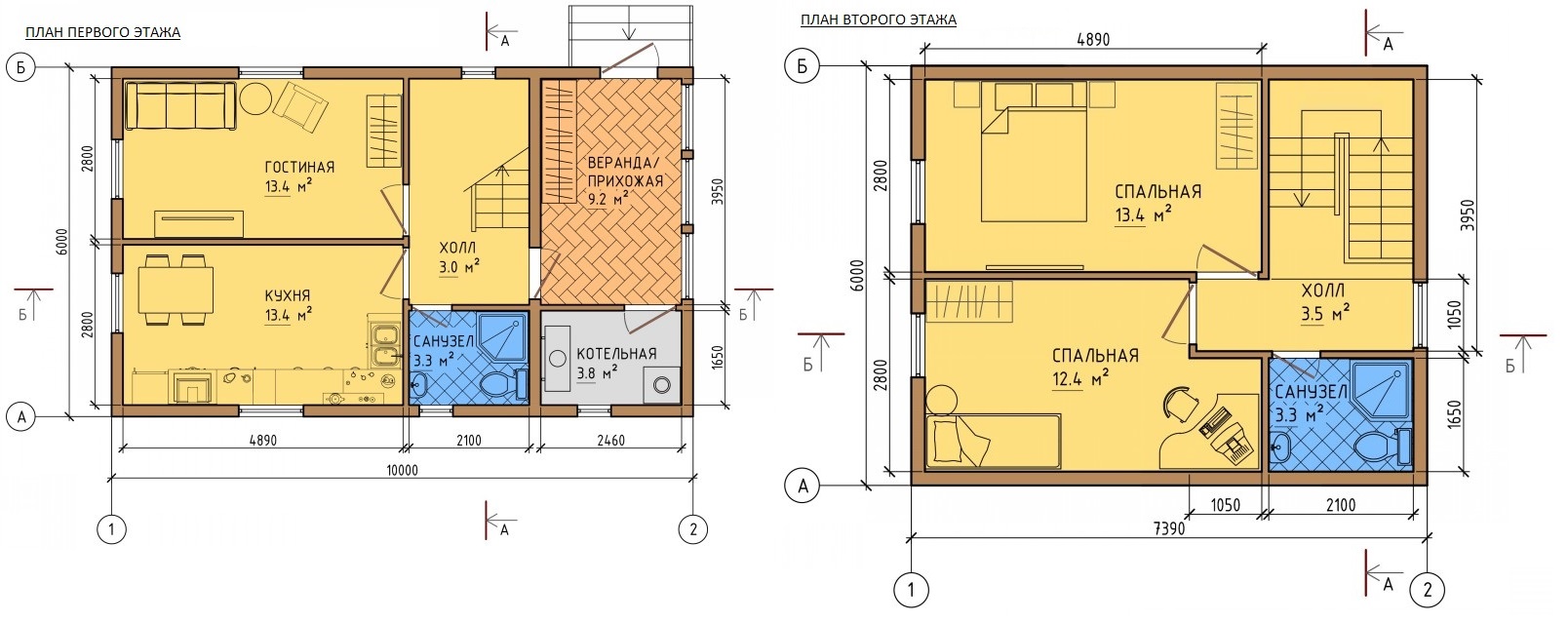
Размер строения: 6 на 10
Площадь: 104 кв.м.




Компактный дом с большими комнатами, верандой и котельной, предназначенный для круглогодичной эксплуатации.
Размер строения: 6 на 10
Площадь: 120 кв.м.




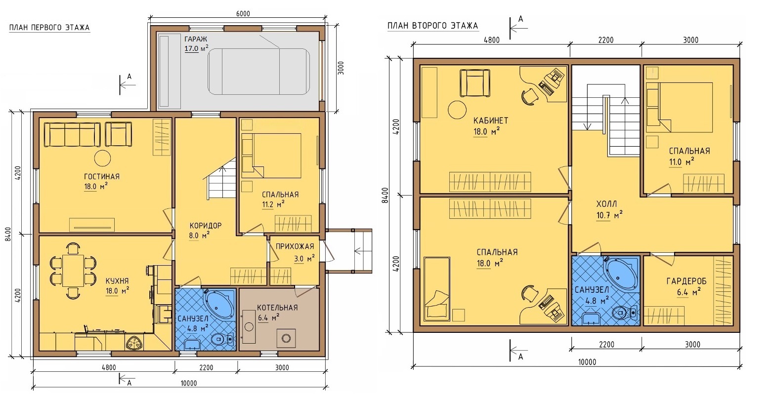
Вместительный дом с пристроенным отапливаемым гаражом. Возможно изменить его расположение, разместив гаражное помещение по левой стороне здания.
Размер строения: 6 на 10
Площадь: 120 + 15 кв.м.




Данный проект имеет крыльцо-террасу под одной крышей с основным зданием, а также метровые свесы кровли в скандинавской стилистике. Часть террасы можно трансформировать под котельную.
Размер строения: 7 на 10
Площадь: 140 кв.м.




Большой дом с котельной. Возможно обустройство до пяти спален и двух санузлов.
Размер строения: 8 на 8
Площадь: 128 кв.м.




Проект просторного дома, в гостиную можно установить камин. Прихожая может быть разделена на две части, одна из которых будет выделена под котельную. Второй этаж может вмещать до трех спален если урезать площадь санузла.
Дома 150-200 кв.м.
Размер строения: 10.5 на 13
Площадь: 192 кв.м.




Проект предполагает постройку большого и комфортного, удобного дома. В нем будет котельная, второй вход с террасы, а также лоджия на двух этажах с большой площадью остекления. Просторный холл и кладовые делают дом удобным для использования в течении всего года.
Размер строения: 8.4 на 10.5
Площадь: 172 кв.м.




Отличительной чертой проекта является крыльцо, над которым можно возвести балкон огромной площади.
Размер строения: 8.4 на 10
Площадь: 168 кв.м.




Комфортный дом большой площади с местом под установку газового котла в котельной.
Размер строения: 8.4 на 10
Площадь: 167 кв.м.




По данному проекту можно построить комфортабельный дом для круглогодичного проживания с камином в гостиной. Сборка производится по так называемой технологии «Платформа».
Размер строения: 8.8 на 11.7
Площадь: 198 кв.м.




Дом имеет не самую большую площадь, однако обладает изысканным внешним видом и весьма практичен. В нем есть встроенная сауна и камин в гостиной. Предусмотрено четыре спальни, при том их количество можно увеличить до пяти либо шести если установить мансардное окно в гардеробной. Кроме того, есть место под монтаж газового котла в специально предназначенном помещении.
Размер строения: 8.8 на 9.8
Площадь: 197 кв.м.




Коттедж имеет большую террасу (патио) и панорамное остекление. В нем 3 спальни и помещение под кабинет, которое можно переделать под еще одну спальню либо гостевую комнату. Планировка делает дом удобным для проживания всей большой семьей. В котельной предусмотрено место под установку газового котла. Кроме того, она имеет большую площадь, что позволяет использовать ее в качестве подсобного помещения.
Размер строения: 9 на 9
Площадь: 168 кв.м.




Высококомфортабельный коттедж с современным и очень красивым фасадом. В нем есть гостиная большой площади с кухней, а также три спальни на втором этаже. Кладовую при желании можно переделать под санузел.
Размер строения: 9.5 на 9.5
Площадь: 180 кв.м.




Проект дает возможность построить недорогой, но при том очень удобный и просторный дом, имеющий камин в гостиной и предназначенный для круглогодичного проживания. Имеет второй свет, который можно не реализовывать, сделав еще одну комнату на втором этаже.
Размер строения: 8.4 на 10
Площадь: 168 кв.м.




Уютный дом, просторный внутри и компактный снаружи. Имеется котельная с местом под установку газового котла. Отапливаемый гараж можно разместить с любой стороны здания.
Дома более 200 кв.м.
Размер строения: 13.2 на 16.2
Площадь: 308 кв.м.
Великолепный дом в стиле шале. Имеется зона СПА, а также балкон большой площади и терраса, второй свет с панорамным остеклением. Несмотря на каркасную технологию возведения, дом напоминает брусовый, имеет лаги второго света, а также колоны на балконе и террасе. Однако в отличии от дома из бруса, не требуется ожидания усадки строения после его возведения. Монтаж возможен на основание любого типа с любым рельефом. Предусмотрен камин в гостиной.




Размер строения: 10.5 на 13
Площадь: 242 кв.м.




Очень просторный и удобный дом, позволяющий с комфортом проживать круглый год большой и дружной семье. Имеется помещение под котельную и прачечную, 2 лоджии с большой площадью остекления, красивый вход с окошками по бокам, просторные санузлы, вместительные кладовки.
Вот мы и показали наиболее популярные проекты каркасных домов в 2 этажа. Надеемся, наша статья поможет вам сделать оптимальный выбор.