Обзавестись собственным домом — это очень сложный, ресурсозатратный процесс. Стоимость стройматериалов, оплата рабочим, решение вопросов с бумагами, правом собственности часто отталкивают людей от постройки собственного жилья. Традиционные дома из кирпича или цельного дерева теперь недоступны для преимущественного большинства россиян. Современные технологии строительства, применение новых отделочных материалов призваны решить эту проблемы. Именно поэтому проекты одноэтажных каркасных домов сейчас являются одним из самых обсуждаемых вопросов в интернете.


Что такое каркасное здание? Это несложная конструкция, в которой все несущие стены взаимосвязаны между собой. Возведение такого жилья происходит в рекордные сроки, может быть осуществлено одним человеком. Среди каркасных домов выделяют несколько типов: традиционный из дерева и СИП.
Традиционные каркасные дома: популярное решение для любого климата
Идея таких конструкций широко развита в Европе и Америке. Каркасное здание представляет собой здание из дерева высокого качества, толстого слоя утеплителя. Воздвижение строения происходит за несколько недель, учитывая внутреннюю отделку, подводку коммуникаций.
Несущие стены конструкции создаются из строганной доски или крепкого бруса. Будущий каркас здания включает в себя внешние, внутренние стены, которые равномерно распределяют вес здания. В полостях между внутренней и внешней обшивкой укладывается слой утеплителя — минеральная вата, которая позволяет удерживать тепло даже при -10°С.
Базовый вариант здания предназначен для проживания в течение теплого времени года. Как правило, бюджетный вариант отопление не предусматривает. Главным источником тепла могут стать: печь, естественное тепло от солнца или электрообогреватели. Для более сложных вариантов существует вариант централизованного или автономного отопления. Проекты одноэтажных каркасных домов канадского типа для круглогодичного проживания также пользуются популярностью у фермеров, жителей сельской местности, садоводов-любителей. Главная задача такого строительства — максимально удешевить стоимость материалов, возведения стен.


К преимуществам традиционных каркасных зданий можно отнести:
- Дешевизна строительства;
- Долговечность конструкции;
- Возможность самостоятельной постройки здания одним человеком;
- Экологичность материалов.
Каркасное одноэтажное здание возводится на простом ленточном фундаменте и имеет небольшой общий вес. Ориентировочная продолжительность службы здания составляет 15-30 лет при условии ухода за стенами.
Ремонт устаревших перекрытий и стен также не является проблемой.
Самостоятельно заменить прогнившие или просевшие доски можно за несколько дней.
СИП-панели — новое слово строительных технологий
Сендвич-панели являются логическим продолжением идеи каркасного здания. Данный тип отличается меньшим весом, упрощенной постройкой, но большей ценой постройки за м2. Главным преимуществом СИП является большая теплоизоляция. Жить в таком доме можно круглый год.
К новому типу домов отношение двоякое. С одной стороны, еще более упрощенная постройка из панелей позволяет завершить строительство за неделю. С другой стороны, недостаток опыта и информации о данном типе материала ставит под сомнение целесообразность постройки. Большинство каркасных зданий строится по традиционному методу, ведь опыт их постройки и использования достигает почти 200 лет.


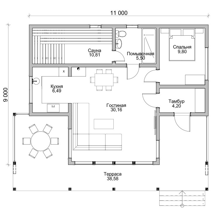
Выбор планировки
Одноэтажный дом предполагает размещение всех хозяйственных и жилых комнат внутри небольшого прямоугольника с соотношением сторон 4:3 общей квадратурой в 60-90 м2. Простота этой фигуры позволяет равномерно распределять нагрузку на фундамент и заметно экономит строительный материал. К примеру, воздвижение Г-образного здания может зайти в тупик на стадии реализации — небольшое проседание грунта или неблагоприятная погода заметно ослабят конструкцию.


Чтобы быстро выбрать подходящий вариант, необходимо определиться со следующими критериями отбора:
- Необходимая площадь жилого пространства;
- Форма здания — тип крыши;
- Наличие гаража;
- Количество, размеры комнат;
- Наличие подвального помещения, мансарды.
Отталкиваясь от полученных результатов, можно отсортировать готовые проекты и выбрать подходящий.
Если возникают проблемы с ответом, ознакомьтесь с простой статистикой:
- Площадь должна учитывать личное пространство для каждого из жильцов + площадь хозяйственных комнат (кухня, санузел, ванная);
- Простая форма здания удешевляет производство. Наличие второго этажа, колонн, сложной формы фундамента увеличивает стоимость строительства;
- Наличие подвального помещения и мансарды увеличивает цену строительства на 30-50 %;
- Гараж, как часть дома, может заметно удешевить строительство;
- Так, для семьи из четырех человек предпочтителен проект одноэтажного каркасного дома с двускатной крышей, гаражом, тремя спальнями общей квадратурой 120м2.
Небольшие сезонные дачи более популярны, чем жилые каркасные дома. К сожалению, люди недостаточно осведомлены о прочности, надежности, практичности современных конструкций. Однако дешевизна, простота возведения становятся главной причиной выбора.
Так, на нашем сайте проекты одноэтажных каркасных домов до 100м2 общей жилой площади занимают ключевое место.
Достаточное количество пространства для двух людей, наличие необходимого количества жилых, хозяйственных помещений, возможность пристройки гаража являются ключевыми при выборе планировки.
Выбор материалов для сложного строительства
Для самостоятельного строительства наиболее подходящим, дешевым материалом является дерево. Достаточное количество досок, бруса составляет около 15 % от общей стоимости дома, утеплитель, подводка коммуникаций – 35 %. Экономя на найме рабочих, можно заметно сократить общую стоимость дома.
Выбрать оптимальный материал можно, зная примерные характеристики дома: квадратуру, особенности климата, граничную нагрузку, которые должен выдержать материал. В этом смысле одноэтажные проекты заметно выгоднее многоэтажных: строительный материал должен выдерживать минимальный вес, а значит, его количество — небольшое. Стоимость уменьшается пропорционально качеству и количеству материалов.


Пристройка гаража к дому заметно удешевит общую стройку, сэкономит полезное пространство. Для его постройки необходимо выбирать более прочный материал из-за ряда параметров:
- Толщина стен;
- Ширина ворот;
- Вес кровли.
Важно размещать жилые комнаты вдали от гаража. Это позволит не мешать другим жителям дома во время проведения ремонта или обслуживания машины, снизит потерю тепла в зимний период через смежную с гаражом стену, позволит разместить санузел, ванную между гаражом и жилыми комнатами, что упростит установку коммуникаций, снизит стоимость на их подведение.
Проект одноэтажного каркасного дома с просторным гаражом общей площадью до 100м2 требует использования разных типов материалов: досок, бруса, особого вида фундамента (под гараж обязательна бетонная подушка или ленточный фундамент).
Ориентировочная смета строительства
При учете выполнения заказа под ключ цена за 1 м2 может достигать 10-30 тыс. руб. (без учета выравнивания грунта, стоимости отделочных работ). Так, небольшое здание в 50м2 обойдется заказчику примерно 500,000 руб., без учета выравнивания грунта, земляных работ, т. д. Низкая стоимость материалов и простота технологии делает возможным самостоятельное строительство дома с нуля.
Проекты одноэтажных каркасных домов из дерева и утеплителя до 150м2 общей жилой площади может обойтись заказчику до 1 млн. рублей (включая земляные работы и внутреннюю отделку). Отдельное внимание стоит уделить оконным проемам, дверям, наличию застекленной веранды. Для холодных широт размеры окон должны быть минимальными для предотвращения потери тепла. Здания, построенные на территории южных областей с теплым климатом, могут быть оборудованы окнами большего размера.


Дизайн дома
Название проектов хорошо отображают общий дизайн, назначение дома. Благодаря вариативности в выборе внешней отделки можно создать уникальный дизайн, который впишется в идею ландшафта участка. Создать копию европейского домика, традиционной русской избы или современного здания в стиле минимализм очень просто. Прочный каркас позволяет крепить любой вид отделки:
- Деревянную вагонку большой толщины;
- Металлические панели;
- Декоративную штукатурку (в т. ч. «короед»), побелку;
- Искусственный камень всех типов.
Распространенные вопросы и ответы на них
В: Насколько постройка каркасного дома дешевле простого кирпичного?
О: Цены на материалы для двух типов с одинаковой квадратурой и планировкой заметно отличаются. Цена на каркасный меньше примерно в 3-4 раза. Однако стоит знать, что уход и обслуживание каркасного здания может оказаться дороже. Так, своевременный ремонт каркасного дома необходим 1 раз в 3-5 лет. Для кирпичного капитальный ремонт можно не производить в течение 30 лет.
В: Многие считают, что со временем каркасные дома теряют свои свойства ввиду разуплотнения минеральной ваты. Так ли это?
О: К сожалению, да. Однако причиной этого являются ошибки на стадии возведения несущего каркаса. Заизолированная минеральная вата может служить до 10-15 лет без потери своих качеств.
Также важно знать, что самостоятельный ремонт стены очень прост и доступен. Замена отдельных блоков минеральной ваты производится за несколько дней.
В: Чем лучше обшивать внутреннее помещение такого дома?
О: Выбор очень широк, однако для такой конструкции неплохо подойдет гипсокартон, деревянная вагонка и другие виды легкой отделки. Важно иметь быстрый доступ к стене, для своевременного ремонта и максимального использования пространства.
В: Как рационально распределить жилое пространство для максимальной функциональности?
О: Очень популярным вариантом является сооружение небольшого коридора-прихожей, из которого можно попасть в каждую из комнат. В таком здании вход находится по центру фасада. Небольшой коридор занимает 10-15 % площади и служит прихожей, небольшой нишей, гардеробом. Из него можно войти в одну из трех жилых комнат, санузел или кухню. Планировка со смежными комнатами постепенно теряет свою популярность ввиду потери полезного пространства, сложности реализации.
В: Как сложно реализовать проект в одиночку?
О: Без опыта в строительстве дом не построишь. Однако базовый опыт, понимание способа обработки древесины, минимальные знания о внутренней и внешней отделке позволят самостоятельно возвести небольшое здание с большим ресурсом.