Благодаря каркасной технологии домостроения даже скромного дачного участка вполне достаточно для возведения небольшого каркасного дома 6х9 с мансардой для отдыха либо постоянного проживания. При этом по готовому типовому проекту такую постройку можно возвести самостоятельно с минимальными затратами на строительные материалы.


Основные достоинства каркасной технологии частного домостроения
Основными элементами конструкции являются деревянные брусья, доски, тонкий обшивочный материал, утеплитель, кровельное покрытие и финишная облицовка. Поэтому такие дома значительно легче бетонных аналогов и не требуют возведения мощного фундаментного основания.


Каркасный деревянный дом не дает усадку. Сразу после возведения стен и обустройства кровли, можно приступать к отделочным работам. Начиная с фундамента и заканчивая фасадной отделкой, опытная строительная бригада сдает готовый дом заказчику уже через 1-2 месяца.
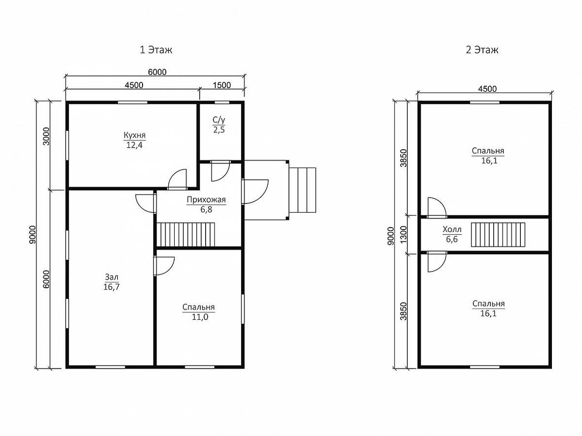
Небольшой каркасный загородный дом размером 6х9 с мансардой при необходимости можно разобрать, перевезти на другое место и собрать заново. Типовые проекты подобных строений можно изучить ниже:






Самостоятельное возведение каркаса жилого дома
Как правило, возведение любой постройки начинается с фундаментного основания. Так как небольшой дом 6х9 отличается легким весом, для него подойдет неглубокий ленточный фундамент либо столбчатый. Такое основание не требует большого количества расходных материалов, соответственно значительных финансовых затрат.


Для примера, на обустройство прочного железобетонного фундамента под кирпичное или бетонное сооружение приходится примерно 30% от общих затрат на строительство.
По готовому фундаменту делают обвязку из деревянных брусьев, выполняют гидроизоляцию и начинают возводить непосредственно каркасный жилой дом размером 6 на 9 метров с мансардой.

Большинство типовых проектов небольших каркасных домов предполагают использование исключительно пиломатериалов. Можно каркас стен изготовить и из металлических профилей, но такая конструкция обойдется несколько дороже. Поэтому рекомендуется использовать брус сечением 15х5 см.
Сначала устанавливаются вертикальные опорные стойки по всему периметру здания, позже фиксируют их к нижней обвязке. При этом дополнительно рекомендуется использовать укосины для укрепления стоек. Далее опоры соединяют между собой горизонтальными балками. С наружной стороны каркасные стены можно обшить строительными досками или деревянной вагонкой.


Далее обустраивается половое основание. На фундамент предварительно укладывают деревянные лаги сечением 15х5 см с шагом 60 см. Между фундаментом и лагами обязательно прокладывают слой гидроизоляции. Для этого подойдет рубероид.
Между лагами вкладывают теплоизоляционные плиты, затем гидроизоляцию и черновое напольное покрытие.
Возведение кровельной конструкции
Проект загородного каркасного дома параметрами 6 на 9 метров с дополнительно обустроенной мансардой прекрасно подойдет тем, кто желает любым возможным способом увеличить жилую площадь.
Когда говорят о постройках с мансардой, многие сразу представляют перед собой крышу дома скатного типа, под которой обустроено жилое помещение. На самом деле мансардой можно считать любой чердак.

При обустройстве мансарды стройматериалы для монтажа стропильной системы рекомендуется брать такие же, как и для несущих каркасных стен здания. При этом конструкция тщательно гидроизолируется и утепляется, в т.ч. обустраивается слой звукоизоляции.
В качестве кровельного материала при этом не рекомендуется использовать металлические покрытия. Лучше всего подойдет мягкая кровля, чтобы в жилой комнате под крышей не было слышно дождя.


Утепление постройки
Если дом планируется использовать не только летом для отдыха, а для постоянного проживания, его необходимо хорошо утеплить, чтобы комфортно себя чувствовать в зимний период.
При этом рекомендуется использовать легкие теплоизоляционные материалы, чтобы не создавать дополнительную нагрузку на фундаментное основание. Идеальный вариант – плитный утеплитель на основе минеральной ваты, но есть и другие материалы. С минватой проще работать и она недорого стоит.


Для утепления кровли лучше всего использовать базальтовую вату, она более устойчива к неблагоприятным природным воздействиям. При этом обязательно обустраивается влагозащита.
Пол мансарды обустраивается аналогично основанию первого этажа по лагам, между которыми прокладывается тепло- и гидроизоляция, затем черновое покрытие и финишная облицовка.


Также необходимо не забыть утеплить фронтоны и перегородки чердачного помещения. Можно также использовать минеральную вату, она легкая, пожаростойкая и хорошо держит тепло внутри помещения.